Модульний будинок Easy

Модульний будинок Easy

Площа
64 м²
Кімнати
3
Розмір
10,7 х 7
64 м² • 3 кімн. • 10,7 х 7
Без ремонту
37996 $
  • Будинок з завершеним зовнішнім оздобленням, утеплений, готовий до створення власного інтер'єру.
  • По будинку розведено інженерні мережі.
  • Вам залишається лише зробити внутрішнє оздоблення стін, стелі та підлоги.
З ремонтом
58218 $
  • Повністю готовий будинок із преміальним ремонтом.
  • Стіни оздоблені гіпсокартоном та фарбовані у відтінки, які виберете Ви.
  • Підлога вкрита ламінатом, стеля — натяжна (колір визначаєте Ви).
  • Встановлені вікна та двері преміальної якості.
  • Встановлене внутрішнє та зовнішнє освітлення.
  • Вмонтована тепла підлога по всій площі будинку, електрощитові, електрофурнітура, рекуператори повітря, сантехніка, підігрів водовідведення, водовідведення з даху.
  • Додатково можна встановити піч-камін.
Під ключ
64378 $
  • Вартість включає фундамент, доставку та монтаж будинку (без урахування тераси).
  • Остаточна ціна залежить від локації та особливостей ділянки.

Опис будинку

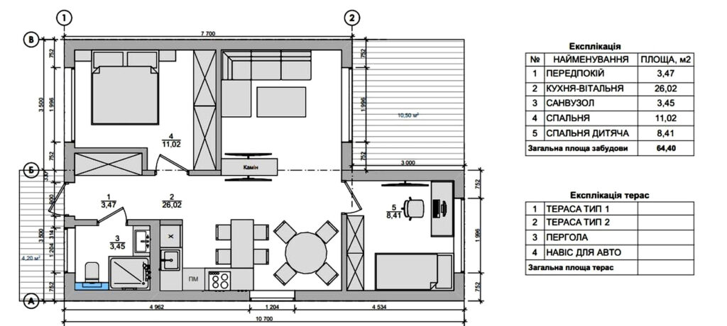
Модульний будинок Easy площею 64 м² — це сучасне рішення для комфортного життя за містом або постійного проживання. Продумане планування включає дві окремі спальні та простору кухню-вітальню, що дозволяє зручно розмістити сім’ю. Завдяки технології модульного будівництва, будинок швидко виготовляється та встановлюється на ділянці без тривалих будівельних робіт.

Цей модульний будинок поєднує енергоефективність, функціональність та сучасний дизайн. Підходить як для дачі, так і для постійного проживання або орендного бізнесу. Easy 64 м² — це оптимальний варіант серед модульних будинків в Україні для тих, хто шукає готове житло з мінімальними термінами реалізації та зрозумілою вартістю.

Технічні характеристики

Каркас
Силовий каркас 50\155-50\205 із сухого (вологість 10-12%) бруса
Фасад
Планкен Смерека та фальцеві картини
Утеплення
базальтова вата 250/200/250 (дах/стіни/підлога)
Покрівля
ПВХ мембрана
Висота стелі
2,7м.
Строк виготовлення
3 місяці

Додаткові витрати

Тераса
з монтажем за м.кв. 250 $
Тераса крита
з монтажем за м.кв. 380 $
Фундамент
4160 $
Доставка
2000 $
Монтаж
входить у вартість, 0 $

Умови придбання

перший внесок 20% (передзамовлення матеріалів)
через 21 день - 60% (закупка матеріалів)
по закінченню - залишок 20%
Готові замовити?
Отримайте точний розрахунок по цій моделі будинку.