Модульний будинок SmartBarn

Модульний будинок SmartBarn

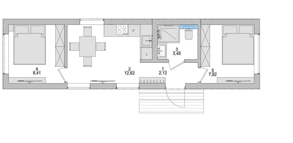
Площа
45 м²
Кімнати
3
45 м² • 3 кімн.
Без ремонту
30240 $
  • Будинок з завершеним зовнішнім оздобленням, утеплений, готовий до створення власного інтер'єру.
  • По будинку розведено інженерні мережі.
  • Вам залишається лише зробити внутрішнє оздоблення стін, стелі та підлоги.
З ремонтом
45585 $
  • Повністю готовий будинок із преміальним ремонтом.
  • Стіни оздоблені гіпсокартоном та фарбовані у відтінки, які виберете Ви.
  • Підлога вкрита ламінатом, стеля — натяжна (колір визначаєте Ви).
  • Встановлені вікна та двері преміальної якості.
  • Встановлене внутрішнє та зовнішнє освітлення.
  • Вмонтована тепла підлога по всій площі будинку, електрощитові, електрофурнітура, рекуператори повітря, сантехніка, підігрів водовідведення, водовідведення з даху.
  • Додатково можна встановити піч-камін.
Під ключ
50349 $
  • Вартість включає фундамент, доставку та монтаж будинку (без урахування тераси).
  • Остаточна ціна залежить від локації та особливостей ділянки.

Опис будинку

Модульний будинок SmartBarn площею 45 м² — це сучасне рішення у стилі барнхаус для тих, хто шукає компактне, але комфортне житло. Лаконічна архітектура, продумане планування та ефективне використання простору дозволяють отримати повноцінний будинок для відпочинку або постійного проживання без зайвих витрат і складного будівництва.

SmartBarn 45 м² підходить як для дачі, так і для життя за містом або здачі в оренду. Завдяки модульній технології будинок швидко виготовляється та встановлюється, а сучасні матеріали забезпечують енергоефективність і комфорт у будь-яку пору року. Це оптимальний варіант для тих, хто хоче отримати готовий будинок під ключ у короткі терміни.

Технічні характеристики

Каркас
Силовий каркас 50\155-50\205 із сухого (вологість 10-12%) бруса
Фасад
Планкен Смерека та фальцеві картини
Утеплення
базальтова вата 250/200/250 (дах/стіни/підлога)
Покрівля
ПВХ мембрана
Висота стелі
2,7м.
Строк виготовлення
3 місяці

Додаткові витрати

Тераса
з монтажем за м.кв. 250 $
Тераса крита
з монтажем за м.кв. 380 $
Фундамент
2950 $
Доставка
1800 $
Монтаж
входить у вартість, 0 $

Умови придбання

перший внесок 20% (передзамовлення матеріалів)
через 21 день - 60% (закупка матеріалів)
по закінченню - залишок 20%
Готові замовити?
Отримайте точний розрахунок по цій моделі будинку.