Модульний будинок Space

Модульний будинок Space

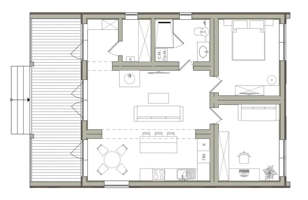
Площа
86 м²
Кімнати
3
Без ремонту
52976 $
  • Будинок з завершеним зовнішнім оздобленням, утеплений, готовий до створення власного інтер'єру.
  • По будинку розведено інженерні мережі.
  • Вам залишається лише зробити внутрішнє оздоблення стін, стелі та підлоги.
З ремонтом
81700 $
  • Повністю готовий будинок із преміальним ремонтом.
  • Стіни оздоблені гіпсокартоном та фарбовані у відтінки, які виберете Ви.
  • Підлога вкрита ламінатом, стеля — натяжна (колір визначаєте Ви).
  • Встановлені вікна та двері преміальної якості.
  • Встановлене внутрішнє та зовнішнє освітлення.
  • Вмонтована тепла підлога по всій площі будинку, електрощитові, електрофурнітура, рекуператори повітря, сантехніка, підігрів водовідведення, водовідведення з даху.
  • Додатково можна встановити піч-камін.
Під ключ
89590 $
  • Вартість включає фундамент, доставку та монтаж будинку (без урахування тераси).
  • Остаточна ціна залежить від локації та особливостей ділянки.

Опис будинку

Модульний будинок Space площею 86 м² — це збалансоване рішення для тих, хто цінує простір, функціональність та сучасний формат життя за містом. Завдяки оптимальній площі, будинок дозволяє комфортно організувати житлову зону, кухню-вітальню та окремі кімнати без відчуття тісноти, що робить його зручним для щоденного проживання.

Space також підходить для використання в орендному форматі — його площа і планування добре сприймаються гостями, які шукають комфорт рівня квартири, але в природному середовищі. Це практичний варіант для тих, хто хоче поєднати власне проживання з можливістю отримання доходу або інвестувати в модульні будинки з універсальним призначенням.

Технічні характеристики

Каркас
Силовий каркас 50\155-50\205 із сухого (вологість 10-12%) бруса
Фасад
Планкен Смерека та фальцеві картини
Утеплення
базальтова вата 250/200/250 (дах/стіни/підлога)
Покрівля
ПВХ мембрана
Висота стелі
2,7м.
Строк виготовлення
3 місяці

Додаткові витрати

Тераса
з монтажем за м.кв. 250 $
Тераса крита
з монтажем за м.кв. 380 $
Фундамент
5590 $
Доставка
2300 $
Монтаж
входить у вартість, 0 $

Умови придбання

перший внесок 20% (передзамовлення матеріалів)
через 21 день - 60% (закупка матеріалів)
по закінченню - залишок 20%
Готові замовити?
Отримайте точний розрахунок по цій моделі будинку.