Модульний будинок Compact

Модульний будинок Compact

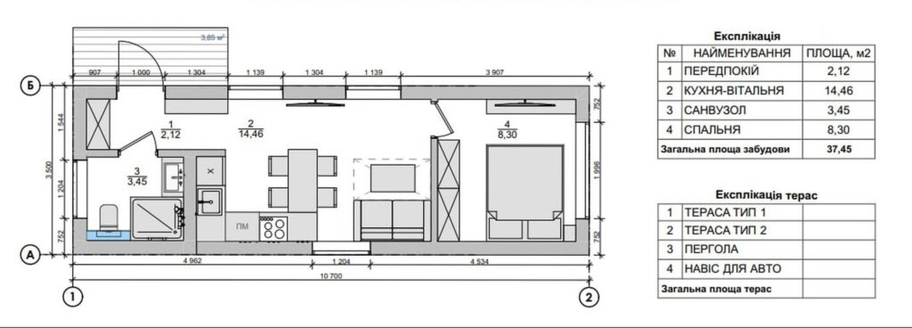
Площа
37 м²
Кімнати
2
Розмір
3,5 х 10,6 м.
37 м² • 2 кімн. • 3,5 х 10,6 м.
Без ремонту
25050 $
  • Будинок з завершеним зовнішнім оздобленням, утеплений, готовий до створення власного інтер'єру.
  • По будинку розведено інженерні мережі.
  • Вам залишається лише зробити внутрішнє оздоблення стін, стелі та підлоги.
З ремонтом
37125 $
  • Повністю готовий будинок із преміальним ремонтом.
  • Стіни оздоблені гіпсокартоном та фарбовані у відтінки, які виберете Ви.
  • Підлога вкрита ламінатом, стеля — натяжна (колір визначаєте Ви).
  • Встановлені вікна та двері преміальної якості.
  • Встановлене внутрішнє та зовнішнє освітлення.
  • Вмонтована тепла підлога по всій площі будинку, електрощитові, електрофурнітура, рекуператори повітря, сантехніка, підігрів водовідведення, водовідведення з даху.
  • Додатково можна встановити піч-камін.
Під ключ
41130 $
  • Вартість включає фундамент, доставку та монтаж будинку (без урахування тераси).
  • Остаточна ціна залежить від локації та особливостей ділянки.

Опис будинку

Сучасний модульний будинок площею 37 м² — це ідеальне рішення для тих, хто шукає компактне, функціональне та швидке у встановленні житло. Завдяки продуманим габаритам 3,5 × 10,6 м будинок легко розміщується навіть на невеликій ділянці, зберігаючи при цьому комфорт повноцінного житла. Лаконічний дизайн у поєднанні з якісними матеріалами фасаду створює сучасний вигляд, який підходить як для постійного проживання, так і для дачі чи бізнесу під оренду.

Цей модульний будинок поєднує в собі швидкість будівництва, енергоефективність та зручне планування внутрішнього простору. Він чудово підходить як інвестиція під орендний бізнес, гостьовий будинок або компактне житло для сім’ї. Завдяки сучасним технологіям виробництва, модульні будинки такого формату дозволяють отримати готовий результат значно швидше, ніж при класичному будівництві, без втрати якості та комфорту.

Технічні характеристики

Каркас
Силовий каркас 50\155-50\205 із сухого (вологість 10-12%) бруса
Фасад
Планкен Смерека та фальцеві картини
Утеплення
базальтова вата 250/200/250 (дах/стіни/підлога)
Покрівля
ПВХ мембрана
Висота стелі
2,7м.
Строк виготовлення
3 місяці

Додаткові витрати

Тераса
з монтажем за м.кв. 250 $
Тераса крита
з монтажем за м.кв. 380 $
Фундамент
2400 $
Доставка
1600 $
Монтаж
входить у вартість, 0 $

Умови придбання

перший внесок 20% (передзамовлення матеріалів)
через 21 день - 60% (закупка матеріалів)
по закінченню - залишок 20%
Готові замовити?
Отримайте точний розрахунок по цій моделі будинку.